Overview
- House
- T4
- 125
- 177
- 370
Description
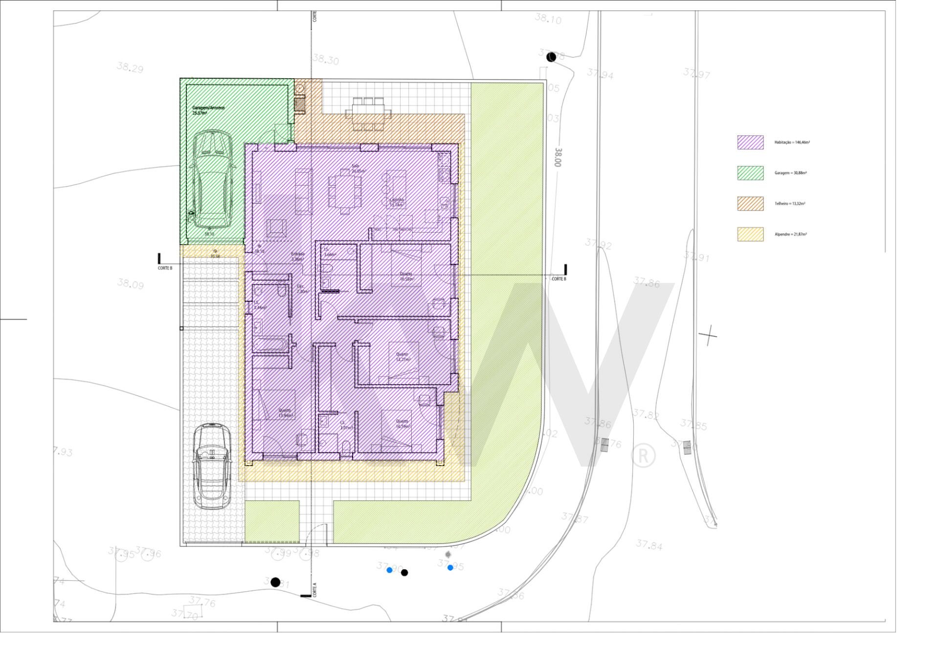
Apresentamos esta moradia térrea T4 em fase de construção, inserida num lote de 370 m², localizada numa zona residencial calma e familiar da Quinta do Anjo.
Trata-se de um projeto moderno, funcional e eficiente, pensado para quem valoriza o conforto, a qualidade de vida e uma excelente localização.
A moradia foi desenhada para privilegiar a luminosidade natural e a fluidez entre espaços, integrando quatro quartos, dois dos quais em suíte, e uma ampla sala com cozinha em open space, ideal para o convívio em família.
Será equipada com ar condicionado LG em todas as divisões, garantindo o máximo conforto térmico ao longo de todo o ano.
No exterior, dispõe de garagem para uma viatura, espaço para mais duas no exterior e um jardim de 84 m², perfeito para desfrutar de momentos ao ar livre.
A moradia apresenta uma área bruta de construção de 146,60 m², complementada por garagem e arrumos com 30,88 m².
Conta ainda com pré-certificado energético A+, refletindo a sua eficiência e sustentabilidade.
A localização é outro dos seus grandes trunfos:
a apenas 8 minutos da A2 e 5 minutos da A33, permite chegar a Lisboa em cerca de 35 minutos, seja pela Ponte 25 de Abril ou pela Ponte Vasco da Gama.
Fica também a 5 minutos da estação de comboios, a 15 minutos do Centro Comercial e Retail Park de Coina/Barreiro e a 25 minutos das praias da Costa da Caparica.
Uma oportunidade única de adquirir uma moradia moderna, espaçosa e bem localizada, numa zona em franco crescimento — ideal para famílias ou para quem procura uma vida tranquila, perto de Lisboa.
Nas proximidades, encontra ainda excelentes escolas nacionais e internacionais, a cerca de 12 a 15 minutos de distância.
Address
-
City: Moita
-
State/county: Setúbal
-
Zip/Postal Code: 2860-121
-
Area: Alhos Vedros
Details
Updated on November 30, 2025 at 10:20 pm-
Property ID 58644
-
Price €600,000
-
Property Size 125 m²
-
Ground Area 370 m²
-
Bedrooms T4
-
Property Type House
-
Property Status venda
-
Gross Area 177
-
Market Centre KW Pro - Sintra
-
Brokerage Núncio & Coutinho Lda (AMI 16107)
Similar Listings
Moradia T4 Térrea em Construção — Quinta do Anjo, Palmela
- €600,000
- Real Investors International















