Overview
- Land
- 141
- 141
- 141
Description
Na urbanização Ribeira do Marchante, Quinta do Conde, a 100m do condomínio da Quinta do Perú localiza-se este loteamento para construção de habitação com todas as infraestruturas e licenciamentos camarários.
O lote está disponível para aquisição e com todas as taxas pagas.
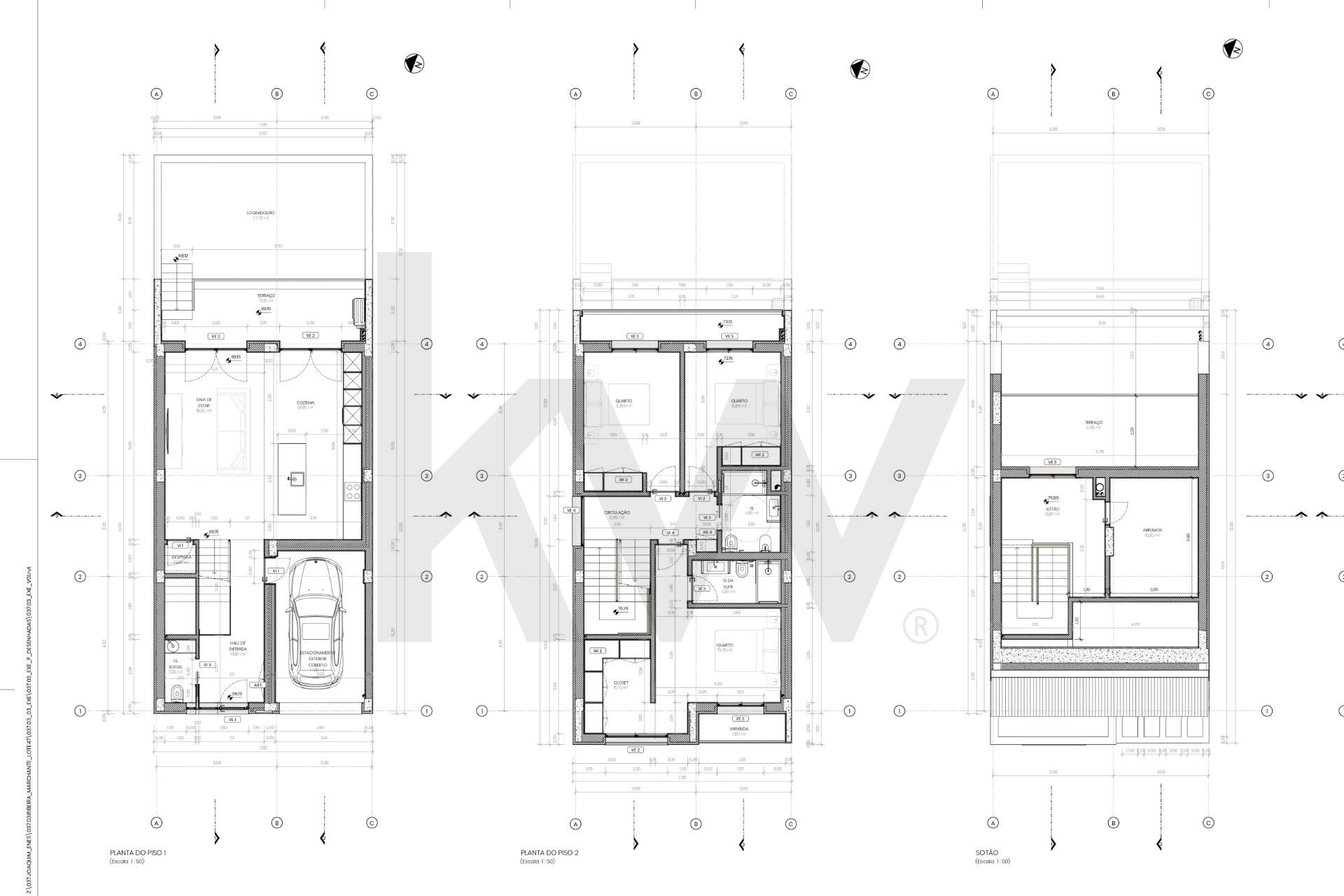
Cada lote tem uma área de 141m2 (20m x 7m2) e destina-se a construção de moradia T3 ou T4 em banda de 2 pisos, com área total de 169,20m2 e aproveitamento de sótão em escritório e terraço assim como logradouro a tardoz.
Temos um projeto de arquitetura aprovado, que serve de modelo, em que houve a preocupação da otimização dos diferentes espaços e exposição à vista panorâmica sobre a serra da Arrábida. A construção prima pela qualidade dos materiais e isolamento térmico e acústico obtendo classificação energética “A”. O projeto de arquitetura poderá ser fornecido digitalizado para analise pelos potenciais interessados.
As infraestruturas correspondentes à urbanização encontram-se em estado de reabilitação total, estando entregue à Câmara Municipal de Sesimbra (CMS) a repavimentação e reabilitação das áreas envolventes às moradias assim que as mesmas iniciarem a construção.
Para construção imediata só necessita de Comunicação Prévia à Câmara de Sesimbra, com a seguinte informação habitual:
Projeto de Arquitetura; Projeto de Especialidades; Alvará de Construção; PSS de Obra; Declaração do Técnico Obra; Declaração da Ordem dos Engenheiros; Seguro de Responsabilidade Civil da Ordem dos Engenheiros; Comprovativo de Contratação do Diretor de Obra; Declaração do Fiscal; Declaração da Ordem dos Arquitetos; Seguro de Responsabilidade Civil da Ordem dos Arquitetos; Alvará de Construção Classe 2; Seguro de Responsabilidade Civil da Empresa; Seguro dos Trabalhadores; Livro de Obra.
A zona é servida de transportes públicos e nas imediações tem todo o tipo de comércio e serviços. A localidade é bastante calma, podendo disfrutar da imensa paisagem desde a serra de Sintra até à serra da Arrábida.
Distancias: Ponte 25 de Abril 25km (25min)Praia Portinho da Arrábida 20km (28min)Aeroporto Lisboa 36km (39min)Praia Fonte da Telha 26km (28min)Praia do Meco 19km (28min).
Estamos ao dispor para mais informações, contacte-nos…
Partilhamos negócio com todas as imobiliárias (50/50)
Mais informações no nosso site kwportugal.pt
Address
Open on Google Maps-
Address: Rua 3
-
City: Sesimbra
-
State/county: Setúbal
-
Zip/Postal Code: 2975-190
-
Area: Quinta do Conde
Details
Updated on April 5, 2026 at 4:12 pm-
Property ID 65691
-
Price €80,000
-
Property Size 141 m²
-
Ground Area 141 m²
-
Property Type Land
-
Property Status venda
-
Gross Area 141
-
Market Centre KW Pro - Sintra
-
Brokerage Núncio & Coutinho Lda (AMI 16107)
Video
Similar Listings
Lote 146 para construção de moradia na Quinta do Conde
- €80,000
Lote 21 para construção de moradia na Quinta do Conde
- €80,000
Lote 258 para construção de moradia na Quinta do Conde
- €75,000
Lote 368 para construção de moradia na Quinta do Conde
- €75,000
- Real Investors International





























